設計案例 | 雙碳背景下污水廠的高標準提標改造案例——唐山市某污水廠
目前,我國大部分城鎮污水處理廠執行GB 18918—2002標準中的一級A排放標準。為進一步改善水環境質量,滿足污水資源化利用的發展需求,近年來北京、天津、安徽、江蘇等地陸續出臺了較《城鎮污水處理廠污染物排放標準》(GB 18918—2002)更加嚴格的流域或區域排放標準。
2021年1月11日,國家發展改革委等10部門聯合發布了《關于推進污水資源化利用的指導意見》(以下簡稱《意見》),明確發展目標:到2025年,全國污水收集效能顯著提升,水環境敏感地區污水處理基本實現提標升級;全國地級及以上缺水城市再生水利用率達到25%以上,京津冀地區達到35%以上。2021年10月24日,《中共中央國務院關于完整準確全面貫徹新發展理念做好碳達峰碳中和工作的意見》發布,26日國務院發布《2030年前碳達峰行動方案》。
在節能減排、綠色發展的政策背景下,污水廠提標改造面臨新的發展要求。
唐山市屬于嚴重缺水城市,2018年11月,唐山市人民政府辦公廳發布《唐山市2019年全城治水清水潤城工程工作方案》,提出通過實施河道綜合治理、河湖水系連通、污水處理廠改造提升、水源涵養及供水、水庫除險加固、沿河村莊環境綜合治理等6大類工程措施,實現全城水質達標,要求唐山市現狀的污水處理廠均需完成類IV類水提標改造。本次提標改造中對多段AO生反池進行MBBR改造和精確曝氣改造,深度處理采用臭氧催化氧化工藝,除臭采用全過程除臭,新建尾水排放管并安裝水力發電裝置。
1、項目概況
本污水處理廠位于唐山市區以北,始建于1990年,經過一期新建、二期擴建、三期提標改造和中水回用工程建設,總處理規模達到12萬m3/d,出水達到一級A標準。根據唐山市實施“全域治水,清水潤城”戰略的需要,本污水處理廠的改造目標為將出水標準由一級A提高到北京市地方標準《城鎮污水處理廠水污染物排放標準》(DB 11/890—2012))中的B標準(京B標準),同時解決臭氣達標排放問題。本工程進出水水質如表1所示。從一級A提升到京B標準,除了總氮不變,COD、BOD5,SS,氨氮和總磷的出水濃度都要求降低。現狀出水SS和總磷已經能達到京B標準,主要是通過優化現狀高效沉淀池的藥劑投加量和運行參數實現。因此,本次提標改造的主要目標是強化COD、BOD5和氨氮的去除。

2、提標改造重點
我國城市污水處理廠的升級改造則多以主體工藝改造為主,主要思路包括對原工藝進行改造,即強化生物處理,和增加深度處理兩個方面。根據進水水質、新的出水水質要求,對現狀生物處理池的處理能力進行評估,本次提標改造的重點如下。
1)污水處理廠進廠水污染物的C/N較高,污水的可生化性較好,選擇在二級生物處理階段作為脫氮除磷的主要場所,是經濟合理的。現狀污水處理廠共5組生反池,總處理規模為12萬m3/d。根據核算,厭氧段、缺氧段和好氧段停留時間為1.0、6.6 h和9.7 h,總水力停留時間為17.3h。現狀厭氧池和缺氧池的停留時間基本滿足新標準的設計需求,現狀好氧區停留時間不足,不能滿足新標準的設計需求。由于本污水處理廠提標改造工程在原用地范圍內進行,無新征用地,需要在不增加池容的情況下,增加生反池的污染物去除能力。
2)本提標改造項目對出水CODCr和BOD5有較高的要求,要求分別從50 mg/L降到3 0mg/L,從10 mg/L降到6 mg/L。污水處理廠實際進水中混有工業廢水,水中含有難降解有機物。前端生化工藝對可生物降解有機污染物的降解比較充分,進一步削減COD需要去除難生物降解有機物。因此,需要增加深度處理進一步去除難降解有機物。高級催化氧化技術是去除難降解有機物的有效方法。高級催化氧化技術中,臭氧氧化應用較為廣泛。臭氧具有極強的氧化性,能與許多有機物或官能團發生反應,有效地改善水質。綜合考慮,本項目深度處理采用了臭氧催化氧化工藝。
3)現狀曝氣系統的氣量調節通過人工手動調節鼓風機來實現,由于多組生反池之間存在壓力不平衡、配水動態變化等問題,手動調節無法準確控制生反池內的溶解氧濃度。現狀生反池運行過程中DO在2.5 ~8.5 mg/L大幅波動,離散度達到了3.42,生反池好氧環境處于不穩定的狀態。
在這種狀態下,不僅硝化菌的活性會受到影響,自身氧化速度加快,而且有機污染物分解過快,從而使微生物缺乏營養,加速污泥老化。同時高DO的污水回流到缺氧池中會破壞反硝化所需的缺氧環境,有機物的過快分解又使反硝化反應缺少碳源,如不及時補充碳源,會影響出水總氮指標。在實際工程中,若進入反硝化段的污水BOD5:TN<4 mg/L時,應考慮外加碳源;若BOD5:TN≥4 mg/L,可認為反硝化完全。當碳源不足時,系統需投加的外部碳源量可根據生物法去除總氮所需的BOD5與進水實際BOD5的差值除以外部碳源的BOD5當量得到。本項目改造前進入反硝化段的污水BOD5/TN為3.2,所需乙酸鈉投加量約為80 mg/L。因此,運行時在第二段AO池的缺氧段進水端投加乙酸鈉(含量為58%,以C2H3NaO2計),投加量為15~16 t/d。
4)一方面,溶解氧濃度直接影響污水生物處理效果;另一方面,污水處理過程中,二級生物處理能耗最高,占全流程污水處理工藝能耗的50%~70%,而鼓風機的能耗占到二級生物處理過程的60%左右,是生化處理過程的關鍵能耗設備。因此,需要對曝氣過程采用合適的控制系統以精確控制溶解氧濃度,同時降低能耗。
5)現狀污水處理廠的污泥濃縮池已設加蓋除臭設施,廠界指標基本達到《城鎮污水處理廠污染物排放標準》(GB 18918—2002)廠界二級排放標準。如何更加經濟地進行除臭優化設計,使臭氣穩定達標也是本項目要解決的問題。
6)本次提標改造無新征用地,所有改造均需在廠區現狀場地內進行。新建的臭氧接觸池需要先拆除一期廢棄的生反池、二沉池和污泥濃縮池后原址新建。根據現狀平面布置,現狀尾水排放管距離新建深度處理池較遠,且廠區圍墻內無空間新建工藝管將尾水接入現狀尾水排放管,同時,新建深度處理池距離排放水體較近,綜合考慮,設計新建一根排放管,就近排入受納水體。一方面,由于受納水體上游有水庫攔蓄,受納水體在非汛期主要以本污水處理廠尾水為主,水體常水位常年較低,現有污水處理廠尾水水位與受納水體有較大的落差,造成水力勢能浪費。另一方面,河道斷面水質監測結果表明,現狀尾水排放口下游斷面水質好于上游,即污水處理廠的尾水對受納水體水質有一定改善作用,本次提標改造工程完成后尾水水質將進一步提高。考慮到本污水處理廠的尾水水質好,水量穩定且基本不受季節影響,是可穩定利用的再生水資源,如何進行尾水資源化利用也是本項目的重點。
綜合考慮,本項目主要改造內容為:生反池采用精確曝氣和MBBR改造,新增臭氧催化氧化池,除臭采用全過程除臭,新建12萬m3/d規模尾水管及排放口。提標改造工藝流程如圖2所示。

3、項目設計亮點
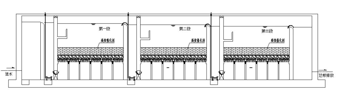
3.1 生反池同時進行精確曝氣和MBBR改造
生反池需同時進行MBBR改造和精確曝氣改造,曝氣控制需同時兼顧MBBR填料掛膜和流化要求,好氧池DO濃度穩定在2.0 mg/L以及節能降耗的要求。為了兼顧MBBR和精確曝氣的需求,本項目精確曝氣對MBBR穿孔曝氣采用給定風量控制策略,對好氧區微孔曝氣采用溶解氧控制策略,從而有效協調和分配多段AO+MBR工藝的曝氣量,實現工藝的穩定運行。
本改造獲得的效益包括以下情況。
1)通過精確曝氣實現自動控制,減少了操作人員手動調節鼓風機的工作量。
2)實現了DO濃度的精準控制。改造后,生反池DO穩定維持在設定值2.0 mg/L附近,離散度只有0.15,與設定值偏差在±0.3 mg/L以內。在這種穩定的狀態下,硝化反應效率較高,同時2.0 mg/LDO的回流也不會對缺氧環境造成影響,反硝化反應得到保障,出水總氮濃度降低且更加穩定。
3)本項目將第二段AO的好氧段進行改造,形成環形通道,同時在出水口安裝攔截穿孔罩和穿孔曝氣管,成功解決了MBBR改造后普遍存在的填料聚集到生反池出水口,堵塞出水口造成生反池水位升高、污水從生反池上部溢出的問題。
4)顯著節約運行成本。改造后,曝氣系統的電耗由0.2 kW·h/m3降至0.1 kW·h/m3,降幅達到49.8%,每年節約電費約為120萬元。適度的溶解氧也不會造成碳源的過度消耗,進水正常情況下,本項目改造后進入反硝化段的污水BOD5/TN為4.0,系統無需外加碳源,則可節約外加碳源15~16 t/d,按外加碳源單價約1 500~1 800元/t,則節省碳源投加成本約1100萬元/a。
3.2 同步采用溶氣式與填料式尾水臭氧催化氧化工藝
根據招標文件要求,本項目臭氧催化氧化接觸池分為兩組,每組為6萬m3/d,分別采用溶氣式和填料式臭氧催化氧化工藝,臭氧投加量為12 mg/L。臭氧接觸池設計停留時間為45 min,池體尺寸為51.2 m×15.7 m×8.3 m,同時兼顧兩種工藝。溶氣式臭氧催化氧化是通過均相催化反應器向水中投加具有催化作用的離子,利用電磁的作用改變污水分子的微觀物質形態,通過高效臭氧溶氣裝置投加臭氧,提高臭氧氣體的溶解效率,并有效減少臭氧投加量。填料式臭氧催化氧化是以高效催化劑作為濾料,催化劑投加量為416 m3,利用催化劑較大的比表面積和孔隙率,提供活性吸附位,生成高活性、低活化能的中間絡合物,然后產生氧化能力極強的?OH,提高臭氧氧化效能。兩種催化氧化工藝對池型要求不同,且填料式臭氧催化氧化工藝的水頭損失比溶氣式臭氧催化氧化高1.0 m,一座池子采用兩種處理工藝,設計難度極大。
為解決上述難題,本項目進行了工藝和結構優化設計,包括均勻配水,兩組接觸池設置不同堰高、液位高和超高,調整設備安裝位置,保證兩組工藝運行效果。


3.3 全過程除臭
本項目除臭采用全過程除臭工藝,包括微生物培養系統和除臭污泥投加系統。本除臭工藝需要在污水處理廠生反池內安裝一定數量的除臭微生物培養箱,在污泥回流泵房安裝污泥泵,按2%~6%的回流比將污泥回流至污水處理廠進水端,除臭微生物可以貫穿整個處理工藝,分解水中產生臭氣的污染物,達到全過程除臭的目的。該方法無需加蓋,無需臭氣收集和輸送系統,無需新建除臭設施,系統精簡、占地小、投資運行成本大幅降低,運行穩定、維護簡便,尤其對于老廠改造,無需停產。

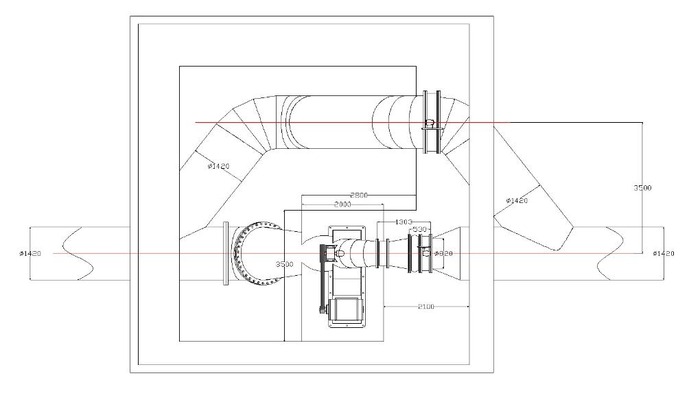
3.4 尾水排放耦合勢能發電
本項目新建一根DN1400的尾水排放管,尾水排放水位與河道常水位存在約4.0 m高差,設跌水井一座。污水處理廠的尾水水質、水量穩定,且基本不受季節影響,是可穩定利用的再生水資源,因此,本項目后續考慮將對跌水井進行水力發電改造,利用尾水水力勢能發電。水力發電裝置安裝在排放管上,同時設旁通管一根,當排放管因發電設備故障需停水,或遇河道洪水位排水不暢時,尾水可從旁通管排出。經過計算,該發電設備為水輪機,功率為60 kW,可實現水力發電1 200 kW?h,可用于廠區內照明等用電設備供電,電費按0.68元/(kW?h)計,則每年節約電費約30萬元。利用污水處理廠尾水發電是對我國碳達峰碳中和政策的積極響應,可以有效減少污水處理廠的碳排放。

3.5 污水處理廠尾水資源化利用
唐山屬于缺水型地區,為響應國家污水資源化利用的號召,本項目推廣實施了尾水資源化利用。一路尾水通過再生水泵輸送到再生水清水池,供給周邊工業企業,規模為3萬m3/d,再生水回用在節約工業企業自來水用量和成本的同時,為污水處理廠帶來的收益為400萬元/年。同時,在臭氧接觸池出水渠安裝潛水泵,設計了三條資源化利用路線,一路用作臭氧發生器的冷卻循環水;一路供給廠內水源熱泵;一路供給廠內景觀綠化用水。污水處理廠內再生水回用規模為0.5萬m3/d,節約自來水費約1000萬元/年。
本污水處理廠改造完成通水后出水水質月均值如圖10所示,各項指標均能穩定達到京B標準。

4、結論與建議
(1)本污水處理廠設計規模為12×104m3/ d,在不新增用地的情況下,出水標準由原國標一級 A 標準提升到北京市地標《城鎮污水處理廠水污染物排放標準》(DB 11/890—2012) 的 B 標準。
(2)本工程對多段 AO生反池進行MBBR改造和精確曝氣改造,深度處理采用臭氧催化氧化工藝,除臭采用全過程除臭,新建尾水排放管并安裝水力發電裝置。
(3)實際運行表明,本工程出水CODCr低于30 mg/L,氨氮低于1.0 mg/L,總磷低于0.2 mg/L,總氮低于12 mg/L,出水水質完全滿足京B標準要求,運行良好。
聲明:本文轉自凈水技術,本文版權歸原作者所有,不代表本網站觀點,僅供學習交流之用,不做商業用途。如文中的內容、圖片、音頻、視頻等存在第三方的在先知識產權,請及時聯系我們刪除。

登錄
