建制鎮污水處理廠設計要點
導語:建制鎮污水處理對于深入打好黑臭水體治理攻堅戰、全面建設綠水青山有著重要的意義。調研發現建制鎮污水處理設計和排放標準多數直接套用城鎮污水處理廠的標準,給建制鎮污水處理廠的建設和運行帶來了較大的負擔。研究結合資料和現場調研發現的問題,初步探討了建制鎮污水處理廠的設計要點,以期為后續工程在節省占地、節約投資、優化運行等方面提供借鑒意義。
一、建制鎮污水處理現狀
隨著生態文明建設的快速推進,近些年來建制鎮污水處理發展迅速,污水處理廠的數量從2018年的7 687座增至2022年的15 177座,建設規模從2018年的2238.84萬m3/d增至2021年的3138.57萬m3/d 。《中國城鄉建設統計年鑒》顯示,截至2022年,對生活污水進行處理的建制鎮14 980個,占比77.84%,污水處理率為64.86%。

圖1 建制鎮污水處理廠數量及規模
有研究針對全國1 155座已建成建制鎮污水處理廠進行了調研,結果表明建制鎮污水處理規模主要集中在1 000~5 000m3/d,出水多執行《城鎮污水處理廠污染物排放標準》(GB 18918-2002)(下稱國標)一級B或一級A,活性污泥法的應用較為廣泛。
本研究實地調研了長江流域的70座建制鎮污水處理廠,對建設規模、出水標準和處理工藝進行了統計分析。建設規模≤3000 m3/d的污水處理廠在統計項目中占比超90%。出水執行國標一級B的污水處理廠占比約20%,其他約80%的項目執行了國標一級A、《地表水環境質量標準》(GB 3838-2002)準Ⅳ類或者更為嚴格的地方標準,例如《巢湖流域城鎮污水處理廠及重點工業行業主要水污染物排放限值》(DB 34/2710-2016)污水處理廠Ⅰ標準。污水處理工藝均選用了活性污泥法,其中90%的項目采用了AO或AAO工藝;9%的項目采用MBR工藝,為百噸級項目,出水執行巢湖標準;僅1個項目采用了氧化溝工藝。除采用MBR工藝的項目以外,其他項目均采用了深度處理工藝。深度處理采用混凝+沉淀+過濾工藝,其中過濾工藝采用濾布濾池或活性砂濾池等。43%的污泥處理項目采用疊螺脫水,12%的項目采用濃縮干化,6%的項目采用壓濾脫水,其余39%的項目直接外運至其他污水處理廠處理。
二、調研存在問題
1.負荷率偏低
調研數據顯示,千噸級的污水處理廠負荷率在32%~75%,平均負荷率62%;百噸級的污水處理廠負荷率在20%~50%,平均負荷率38%。調研的項目多為新建項目,與部分配套管線尚未完成有一定關系,但是整體看來存在負荷率偏低的問題。
2.用地不集約
根據《小城鎮污水處理工程建設標準》(建標148-2010)的建設規模分類標準,對本次調研項目的用地指標進行統計分析,結果見表1。
表1 平均用地指標統計


圖2 污水處理廠規模與用地
百噸級污水處理廠用地指標變化范圍大、規律性差,隨著處理規模的增加,用地指標有明顯下降趨勢,規模超出3 000m3/d時用地指標趨于平穩。調研項目尤其是百噸級污水處理廠用地指標偏高,一方面受到建設規模較小的影響,另一方面也與設計思路沿用了城市污水處理廠的設計思路、建(構)筑物布局分散、道路占地面積大有關。
3.工藝不適用
由于缺少運維管理人員,建制鎮的污水處理應選擇簡單易管理的工藝,避免增加運維難度。
現場調研發現,部分改造項目原設計二級處理采用了生物膜法,運行過程中存在生物膜培養困難、無法應對目前較高的出水水質考核標準,如GB 18918一級A,因此在提標改造工程中將生物膜法改為了活性污泥法。
調研項目中有部分污水處理廠采用了人工濕地工藝,但是由于運行資金的短缺和運維力量的缺失,運行效果不理想,存在污堵后水流不暢、植被無人打理的情況,人工濕地沒有發揮預期的處理效果,卻給污水處理廠的正常運行造成了一定的困擾。因此人工濕地工藝的采用需要綜合考慮項目的用地和運維管理能力等情況。
4.工程投資高
《城市污水處理工程項目建設標準》(建標198-2022)對建設規模為1萬m3/d、出水達到一級A、采用常規污泥處理工藝的新建污水處理廠,投資估算應控制在3 825元/(m3·d)。調研項目中污水處理廠投資估算變化范圍很大,排除個別明顯偏離的數據外,投資集中在5 000~13 000元/(m3·d),投資較高,與處理規模明顯小于1萬m3/d有直接關系。
5.經營成本高
通過現場調研了解到,建制鎮污水處理廠的經營成本高,普遍處于虧損的狀態。政府支付的處理費用多在2.5元/m3以內,而實際經營成本多在3~4元/m3,個別運行負荷率在20%~30%左右的MBR工藝,經營成本粗估甚至高達7元/m3。
電耗和藥耗是經營成本的重要組成部分,這兩部分的實際經營成本會明顯高于設計計算值,原因在于運行負荷率低但所有處理設備需要保持運轉,導致處理單方水的電耗偏高;缺少精細化運維的技術力量和配套設施,為保證出水穩定達標,污水處理廠運行時的投藥量明顯高于實際需求,造成了藥劑浪費。
人工薪酬是建制鎮污水處理廠經營成本的重要組成部分,雖然運營單位注重了人員精簡,例如一個水環境綜合整治項目中的多個污水處理廠共用巡檢技術人員和機修人員,現場操作工多為周邊居民,但是由于處理規模小,導致薪酬成本依舊成為經營成本中較為醒目的一部分。
以調研的某項目為例,設計進水COD濃度為200mg/L,實際進水COD濃度年平均值介于100~200 mg/L之間,2022年全年平均值為154 mg/L,出水執行GB 18918一級A標準,政府支付的處理費用為2.27元/m3。2022年污水處理廠的實際運維成本平均在3.1元/m3,其中電費0.84元/m3,藥劑費0.62元/m3,人工費0.92元/m3。
三、問題分析
上述調研過程中發現的問題,一方面與建制鎮污水處理廠自身規模小有必然聯系,另一方面也與缺少政策引導和針對性技術標準支持,設計和排放標準多數直接套用城鎮污水處理廠的高標準有關。除了《城鄉排水工程項目規范》(GB 55027-2022)、《室外排水設計標準》(GB 50014-2021)、《城鎮污水處理廠運行、維護及安全技術規程》(CJJ 60-2011)等通用的標準外,目前完全針對建制鎮污水處理廠的標準極少。
關于建制鎮污水處理廠的設計標準,現行《小城鎮污水處理工程建設標準》(建標148-2010)的部分內容已經不再適用,主要體現在:當前建制鎮污水處理工程的出水多執行國標一級標準,極少執行本標準里提到的二級和三級處理標準;相應于出水考核指標的提升,本標準里僅有污水的一級和二級處理,已經不能滿足當前污水處理工程出水穩定達標排放的技術需求;物價上漲外加建設標準的提升,現有標準的主要技術經濟指標不再適用。
關于建制鎮污水處理廠的運維標準,可供借鑒的僅廣東省住房和城鄉建設廳發布的《小城鎮污水處理設施運行與維護技術規程》(DBJ/T 15-184-2020)等。
四、設計要點探討
2021年出臺的《“十四五”城鎮污水處理及資源化利用發展規劃》中提出,建制鎮因地制宜采取就近集中聯建、城旁接管等方式建設污水處理設施,推廣“生物+生態”污水處理技術。2023年出臺的《關于推進建制鎮生活污水垃圾處理設施建設和管理的實施方案》鼓勵建制鎮研究制定適用于本地實際情況的污水處理設施建設、運行等地方標準規范,并提出推進建制鎮污水的資源化利用。隨著相關政策的陸續出臺實施,建制鎮污水處理廠的建設和運行有望發生積極的改變。以下就建制鎮污水處理廠的一些設計要點進行初步的探討,以期促進相關問題的解決。
1.合理確定規模
建制鎮污水處理廠負荷率偏低,造成了投資和用地浪費,因此合理確定建設規模是污水處理廠設計時需重點控制的要點之一。
污水處理廠在建設過程中,預處理設施、污泥處理設施、生產用房以及附屬設施建筑等,通常土建按遠期規模一次建成,二級處理和深度處理多分階段建設,因此合理確定污水處理廠的近期和遠期建設規模同樣是設計時需要重點關注的問題。
小城鎮污水處理廠在確定規模時,除了依據相關規劃外,更應加強對現場的調研:
(1)人口流動。隨著城鎮化發展,人口逐漸向城市流動,建制鎮存在人口減少的可能性。當建制鎮外出務工人員較多時,春節期間務工人員集中返鄉會導致期間的污水量明顯增加。旅游景點在旺季的處理水量明顯增加,調研某廠以“溫泉”為特色,在冬季尤其是春節期間出現水量增加的現象。調研時應重視對服務范圍內小企業、小作坊的排水量和排水水質的摸排。
(2)用水習慣。對于缺水地區,例如調研的長江上游某地,經常會出現自來水斷水問題,居民自家多有儲水設施,平時用水較為節約,因此人均用水量小,產生的污水量也較少,水質較濃。污水處理廠進水的COD在800~1 000 mg/L,個別數據超1 000 mg/L;TN在80~100 mg/L,個別數據超100mg/L。
(3)排水體制。多數污水處理廠存在雨天處理量增大的情況:合流制管網雨天處理量增多為必然現象;分流制管網由于混錯接和管理等問題,或者承擔區域內初期雨水處理任務時,雨季污水管網的水量也會有所增加。因此污水處理廠的建設規模,可根據其服務范圍內的管網特點,區分旱季和雨天的處理能力,并同步考慮旱季和雨天設計進水水質的區別。當系統內同步進行管網提質增效、黑臭水體治理等相關工程時,設計中應充分考慮其對建設規模以及進水水質的影響。
2.集約平面布局
建制鎮污水處理廠的建(構)筑物宜組團化和集約化布置,節省投資和占地面積。
建筑物在滿足現行《建筑防火通用規范》(GB 55037-2022)、《建筑防火設計規范》(2018版,GB 50016-2014)的前提下,應集約化布置,具體做法包括:生產用房就近設置在構筑物上方;生產用房合建;管理用房和生活設施用房合建;輔助生產用房可與生產用房合建,也可與管理用房、生活設施用房合建。對于百噸級的污水處理廠,廠區僅設置必須的建筑并盡量合建,如配電室、鼓風機房、進出水水質監測小室、危廢暫存間、門衛和衛生間等。
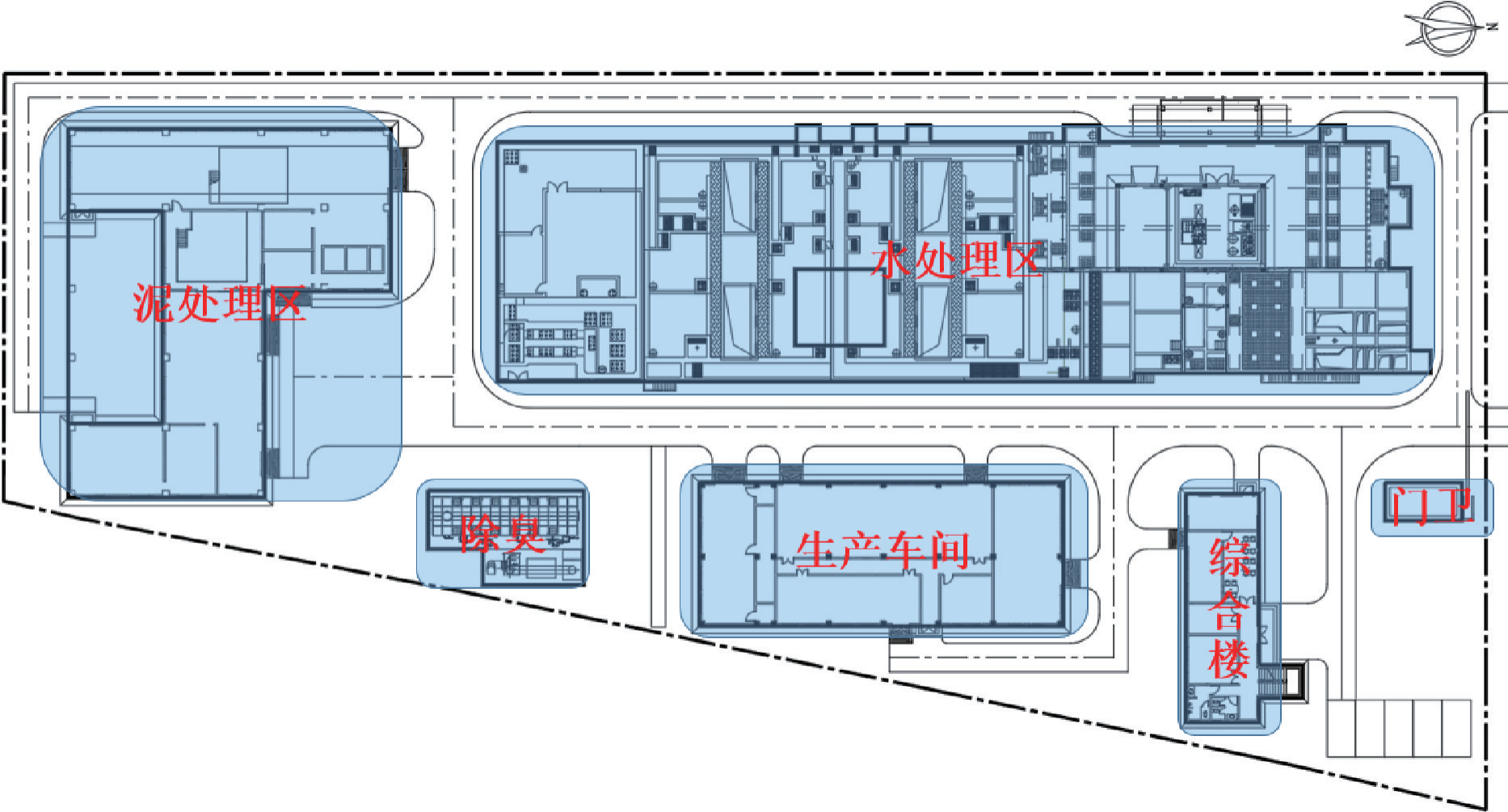
以某5 000m3/d的污水處理廠為例,污水處理采用“格柵+固液分離設備+調節池+生物池+二沉池+高效沉淀池+活性砂濾池+臭氧接觸池+次氯酸鈉接觸消毒”工藝,污泥處理采用“脫水+好氧發酵”工藝。污水處理廠出水水質高,污泥可資源化利用,處理工藝流程長,但用地指標僅為1.89 m2/(m3·d),主要得益于廠區的集約化布置和建(構)筑物的組團化布置。

圖3 某污水處理廠平面布置
3.優選適用工藝
如前文所述,建制鎮污水處理的運維管理力量薄弱,因此污水處理應選擇抗沖擊負荷能力強、運行穩定且運維工作量較小的工藝。在目前出水水質標準多執行國標一級A的條件下,污水處理廠一般需要設置三級處理工藝。
調節池用于緩解水量和水質沖擊對運行的負面影響,對于建制鎮污水處理廠是必不可少的。為改善后續處理單元的運行工況,保護機械設備,預處理階段應設置沉砂池,但是從調研結果來看,多數建制鎮污水處理廠沒有設置,建議采用平流沉砂池或者旋流沉砂池。鑒于預處理構筑物尺寸小,采用混凝土結構實施難度大,也可采用預處理一體化設備,取代傳統的細格柵、沉砂池和配套的砂水分離系統,減少運維的工作量。
二級處理工藝段,結合資料調研和現場運維人員的意見,AAO工藝可作為優選之一,一方面可高效去除有機物、氮和磷,滿足高標準的出水水質要求,另一方面運維管理的工作量相對較小。SBR工藝自控程度高,設備較少,無需設置二沉池,對于建制鎮污水處理廠也有較好的適用性。MBR工藝適用于對出水水質要求高、用地緊張、經濟條件相對較好、運維管理水平較高的地區。建制鎮污水處理廠對氮和磷的去除宜在二級處理階段完成,避免在深度處理階段設置專有的脫氮除磷單元,如氣浮、反硝化濾池等,增加運維管理的工作量。
深度處理單元主要用于去除固體懸浮物,多采用混凝、沉淀和過濾工藝,對于結構較為復雜的處理單元,例如高效沉淀池或者連續流砂濾池等,可采用一體化裝備。在用地允許且有較為充足的運維管理力量時,可采用人工濕地進一步提升出水水質,建議設置在消毒工藝之后。
消毒可根據尾水的用途,采用紫外消毒或者次氯酸鈉消毒。
4.推進遠程控制
現場少人(無人)值守是節約人力資源、降低經營成本的重要舉措。設計中除了選擇運維工作量小的工藝以外,在設備選型方面也應優選對運維管理需求少的型式,并提高自動化控制水平,為遠程集中控制設置必要的設施。
在電氣設備選型上,變配電系統設備主回路優先選擇操作流程簡單、性能穩定可靠、具備一定免維護功能的設備;控制回路配置故障自診斷及設備健康度自評估功能;功率因數補償選用模塊化補償裝置,具備故障后通過便捷更換后快速恢復生產的能力;低壓變頻電抗器選用變頻器內置型等。
對一個區域內的多座建制鎮污水處理廠,可選擇其中一個規模較大的設置集中控制中心,對其他污水處理廠進行遠程控制和管理,提高管理效率且降低經營成本。集中控制中心的建設,應以經濟實用為原則,滿足對進出水水質水量的實時了解、對重要設備運行狀態的監控、對現場重要生產部位的視頻監控、指令的下達、日常報表的線上填報等。
五、結語
建制鎮污水處理對于深入打好黑臭水體治理攻堅戰、全面建設綠水青山有著重要的意義。調研發現,由于缺少針對性強的設計和運維標準的支撐,以及現階段較高的出水考核指標要求,導致現狀建制鎮污水處理廠存在運行負荷率低、用地不集約、投資和經營成本高等問題。近幾年出臺的國家政策在積極推進建制鎮污水處理的建設和因地制宜的污水資源化利用,但是配套的技術標準體系有待完善,因此建議根據政策的調整和技術需求,進一步完善建制鎮污水處理和資源化利用的技術標準體系,促進建制鎮水環境的可持續發展。本研究結合調研結果,初步探討了建制鎮污水處理在設計過程中應關注的要點,以期為后續工程提供參考。
聲明:本文轉自給水排水,作者雷轟、張俊等。本文版權歸原作者所有,不代表本網站觀點,僅供學習交流之用,不做商業用途。如文中的內容、圖片、音頻、視頻等存在第三方的在先知識產權,請及時聯系我們刪除。

登錄
