污泥處置最佳路徑:干化焚燒
污泥焚燒技術
工藝原理
污泥焚燒是指在一定溫度和有氧條件下,污泥分別經蒸發、熱解、氣化和燃燒等階段, 其有機組分 發生氧化(燃燒)反應生成 CO2 和 H2O 等氣相物質,無機組分形成爐灰/渣等固相惰性物質的過程。
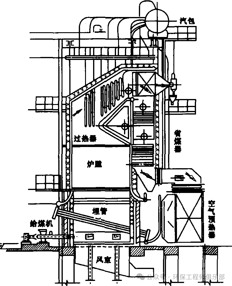
工藝流程及產污環節
污泥焚燒系統主要由污泥接收、貯存及給料系統、熱干化系統、焚燒系統(包括輔助燃料添加系統)、 熱能回收和利用系統、煙氣凈化系統、灰/渣收集和處理系統、自動監測和控制系統及其他公共系統等組 成。污泥干化焚燒工藝流程及產污環節見圖。

污泥焚燒過程排放的主要污染物有惡臭氣體、煙氣、灰渣、飛灰和廢水。
污泥焚燒工藝類型
前處理技術
污泥焚燒前處理技術通常指脫水或熱干化等工藝,以提高污泥熱值,降低運輸和貯存成本,減少燃 料和其他物料的消耗。
熱干化工藝有半干化(含固率達到 60%~80%)和全干化(含固率達到 80%~90%)兩種。
熱干化工藝一般 僅用于 處理 脫水污 泥,主要技術性能指標(以單機升水蒸發量計)為:
熱能消耗2940~4200KJ/kgH2O;
電能消耗0.04~0.90kW/kgH2O。
污泥含固率在35%~45%時,熱值為4.8~6.5MJ/kg,可自持燃燒,通常后面直接接焚燒工藝。用作土壤改良劑、肥料,或作為水泥窯、發電廠和焚燒爐燃料時,須將污泥含固率提高至80%~95%。
單獨焚燒
單獨焚燒是指在專用污泥焚燒爐內單獨處置污泥。流化床焚燒爐是目前單獨焚燒技術中應用最多的焚燒裝置,主要有鼓泡式和循環式兩種,其中尤以鼓泡流化床,焚燒爐應用較多。

鼓泡流化床
污泥單獨焚燒時,在焚燒爐啟動階段,可通過安裝啟動燃燒器或向焚燒爐膛內添加輔助燃料等方式 將爐膛溫度預熱至 850℃以上,然后向焚燒爐爐膛內供給污泥。
混合焚燒技術
污泥與生活垃圾混燒
在生活垃圾焚燒廠的機械爐排爐、流化床爐、回轉窯等焚燒設備中,污泥可以以直接進料或混合進料的方式與生活垃圾混合焚燒。
污泥與生活垃圾直接混合焚燒時會增加煙氣和飛灰產生量,降低灰渣燃燼率,增加煙氣凈化系統的投資和運行成本,降低生活垃圾發電廠的發電效率和垃圾處理能力。
污泥的水泥窯協同處置
經水泥窯產生的高溫煙氣干化后的污泥進入水泥窯煅燒可替代部分黏土作為水泥原料,達到協同處 置污泥的目的。干化后的污泥可在窯尾煙室(塊狀燃料)或上升煙道、預分解爐、分解爐喂料管(適用 于塊狀燃料)等處喂料。
利用水泥窯系統處置污泥時須控制污泥中硫、氯和堿等有害元素含量, 折合入窯生料其硫堿元素的當量比 S/R應控制為0.6~1.0,氯元素應控制為0.03~0.04%。利用水泥窯焚燒污泥的直接運行成本為60~100 元/t(80%濕污泥)。
污泥的燃煤電廠協同處置
可利用燃煤電廠的循環流化床鍋爐、煤粉鍋爐和鏈條爐等焚燒爐將污泥與煤混合焚燒。為提高污泥 處置的經濟性,優先考慮利用電廠余熱干化污泥后進行混燒。
直接摻燒污泥會降低焚燒爐內溫度和焚燒灰的軟化點,增加飛灰產生量,增加除塵和煙氣凈化負荷, 降低系統熱效率3%~4%,并引起低溫腐蝕等問題。
利用火電廠焚燒污泥的單位運行成本為 100~120 元/t(80%濕污泥),系統改造成本約為 15 萬元/t (80%濕污泥)。
消耗及污染物排放
焚燒物料消耗
污泥焚燒消耗的物料主要是燃料、水、堿性試劑和吸附劑(如活性炭)等。
為加熱和輔助燃燒,需添加輔助燃料。將重油作為輔助燃料時,其消耗為 0.03~0.06 m3/t 干污泥;將天然氣作為輔助燃料時,其消耗 4.5~20 m3/t 干污泥。
污泥焚燒主要用水單元是煙氣凈化系統,水耗均值約為 15.5 m3/t 干污泥。其中, 干式煙氣凈化系統 基本不消耗水,濕式系統耗水量最高,半濕式系統居于兩者之間。
堿性試劑如氫氧化鈉消耗為 7.5~33 kg/t 干污泥,熟石灰乳消耗為6~22 kg/t 干污泥。
焚燒能量消耗
污泥焚燒廠主要消耗熱能和電能。熱能產出量與污泥低位熱值高低密切相關, 經由煙氣處理和排放 造成的熱量損失約占污泥焚燒輸出熱量的13%~16%。
污泥焚燒廠消耗電能的主要工藝單元是機械設備的運轉,電耗通常為 60~100kW·h/t(80%濕污泥)。
污泥焚燒的污染物排放
大氣污染物
由于國內污泥焚燒大氣污染物排放數據較少,根據對國外污泥焚燒廠大氣污染物排放統計,污泥焚 燒產生的煙氣經凈化處理后,通常
煙塵排放濃度為 0.6~30 mg/m3;
二氧化硫排放濃度為 50 mg/m3 以下;
氮氧化物(以 NO2 計)排放濃度為 50~200 mg/m3 ;
二噁英排放濃度在 0.1ngTEQ/Nm3 以下;
重金屬鎘排 放濃度為 0.0006~0.05 mg/m3 ,
汞排放濃度為 0.0015~0.05 mg/m3。
廢水
濕式煙氣凈化系統會產生工藝廢水。
灰渣收集、處理和貯存廢水: 采用濕式撈渣機收集灰渣時,會產生灰渣廢水;污泥露天貯存時,雨 水進入產生廢水。
熱干化過程中產生冷凝水,其化學需氧量(CODCr)含量高(約為 2000 mg/L),氮也較高(約為 600~2000 mg/L),還含有一定量的重金屬。
固體殘留物
污泥焚燒產生的飛灰約占焚燒固體殘留物總量的 90%(流化床);灰渣和煙氣凈化固體殘留物合計 約占焚燒固體殘留物總量的 10%(流化床)。
最佳可行工藝流程
污泥焚燒污染防治最佳可行技術主要包括污泥接收、貯存及給料系統,干化系統,焚燒系統,余熱 回收及熱源補充系統,煙氣處理系統,臭氣收集及處理系統,給排水系統,壓縮空氣系統,通風和空調 系統,電氣系統和自控系統等。
污泥干化焚燒污染防治最佳可行技術工藝流程見圖 :

最佳可行工藝參數
污泥焚燒高溫煙氣在 850℃以上的停留時間大于 2 秒,灰渣熱灼減率不大于 5%或總有機碳(TOC) 不大于 3%。
循環流化床焚燒爐流化速度通常為 3.6~9 m/s,鼓泡流化床焚燒爐流化速度通常為 0.6~2m/s。
污泥與生活垃圾混合焚燒時,污泥與生活垃圾的質量之比不超過 1﹕4;利用水泥窯爐混燒的污泥汞 含量小于 3 mg/kgDS,最大進料比例不超過混合物料總量的 5%。
采用半干法煙氣凈化處理工藝時,煙氣停留時間 10~15s,堿性吸附劑過量系數 1.5~2.5,脫酸效率 >98%。為防止布袋除塵器發生露點腐蝕,入口氣體溫度應為 130~140℃。
污染物削減及污染防治措施
預除塵+半干法是最佳煙氣凈化組合系統之一。預除塵可選用旋風除塵器, 半干法可選用噴霧洗滌器與袋式除塵器的組合。添加堿性吸附劑后的脫酸效率可達 90%以上,可去除0.05~20μm 的粉塵,除塵效率可達99%以上。在布袋除塵器后采用選擇性非催化還原法(SNCR),可達到30%~70%的脫硝效率。在標準狀態下,干煙氣含氧量以6%計,煙塵排放濃度不大于30 mg/m3,二氧化硫不大于 350mg/m3 , 氮氧化物不大于450 mg/m3。
為避免二噁英的生成及其前驅物的合成,應通過優化爐膛設計、優化過量空氣系數、優化一次風和二次風的供給和分配、優化燃燒區域內煙氣停留時間、溫度、湍流度和氧濃度等設計和運行控制方式;避免或加快(<1S)在250~400℃的溫度范圍內去除粉塵。在除塵器之前的煙氣流中噴射含碳物質、活 性炭或焦炭等吸附劑,可降低二噁英排放。污泥焚燒系統產生的廢水集中收集處理。
污泥焚燒過程產生的灰渣以及煙氣凈化產生的飛灰分別收集和儲存。灰渣集中收集處置, 飛灰經鑒 別屬于危險廢物的,按危險廢物進行處置。
技術經濟適用性
在大中型城市且經濟發達的地區、大型城鎮污水處理廠或部分污泥中有毒有害物質含量較高的城鎮污水處理廠,可采用污泥干化焚燒技術處置污泥。
污泥焚燒以流化床焚燒爐應用最為普遍。流化床焚燒爐通常適合污泥大規模集中處置。鼓泡流化床 適用于焚燒熱值較低的污泥,循環式流化床適用于焚燒熱值較高的污泥。
若干化和焚燒系統均采用國產設備,干化焚燒項目的投資成本為30~35萬/噸脫水污泥(含水率以80%計);若全部采用進口設備,干化焚燒項目的投資成本為 40~50萬/噸脫水污泥(含水率以80%計)。污泥干化焚燒的直接運行成本約為 100-150 元/噸脫水污泥(含水率以80%計,不包括固定資產折舊)。
最佳環境管理實踐
污泥干化焚燒廠的選址遵循就近原則,優先考慮充分利用污泥焚燒產生的熱量和附近穩定的熱源對污泥進行干化后再焚燒處置。
建立入廠污泥質量控制系統,并定期對污泥中砷、鎘、鉻、鉛和鎳等重金屬進行監測。
安裝自動輔助燃燒器,使焚燒爐啟動和運行期間燃燒室保持850℃以上的燃燒溫度。連續在線監測和調控爐膛溫度、氧氣含量、壓力、煙氣出口溫度和水蒸氣含量等工藝運行參數。
安裝大氣污染物連續在線監測裝置,監測粉塵、氯化氫、二氧化硫、一氧化碳、碳氫化合物和氮氧化物,定期監測重金屬和二噁英,每年至少2~4 次。
脫水污泥貯存區(包括貯存罐和貯存倉)加蓋并保持微負壓。空氣中甲烷含量不應超過1.25%,并宜將貯存區空氣抽做焚燒爐一次風。焚燒爐不運行期間,應避免污泥貯存過量。
干化污泥貯存時,其溫度不宜高于40℃,貯存罐須保持良好通風,并設置除臭系統。
制定應急預案,防止事故的發生。污泥焚燒廠安裝消防、防爆、自動監測和報警系統,確保焚燒設備安全、穩定、連續達標運行。
聲明:本文轉自上海污泥中心。本文版權歸原作者所有,不代表本網站觀點,僅供學習交流之用,不做商業用途。如文中的內容、圖片、音頻、視頻等存在第三方的在先知識產權,請及時聯系我們刪除。

登錄
