村鎮污水疫情期強化病菌滅活及消毒應急方案
2019年12月以來,我(wo)國(guo)發(fa)(fa)生了(le)由(you)新型冠(guan)狀(zhuang)病毒引起的(de)傳染(ran)病疫情,新冠(guan)病毒的(de)播途徑及感(gan)染(ran)風(feng)險也因(yin)此(ci)備受關注。有(you)研究顯(xian)示,新冠(guan)病毒有(you)可(ke)能(neng)通過糞便途徑傳播,或者通過含(han)有(you)病毒的(de)糞便形(xing)成的(de)氣溶膠傳播。在此(ci)情況下,國(guo)家住房和城(cheng)(cheng)鄉(xiang)建設(she)部發(fa)(fa)布了(le)關于《新冠(guan)肺炎疫情期(qi)間(jian)加強(qiang)城(cheng)(cheng)鎮(zhen)污(wu)(wu)水(shui)處理(li)和水(shui)環(huan)境風(feng)險防范的(de)若干建議》,對(dui)(dui)城(cheng)(cheng)鎮(zhen)污(wu)(wu)水(shui)處理(li)系統(tong)安全(quan)運行提(ti)出(chu)注意事項與對(dui)(dui)策措(cuo)施,但針對(dui)(dui)小型村鎮(zhen)污(wu)(wu)水(shui)項目無應對(dui)(dui)措(cuo)施。為保障村鎮(zhen)水(shui)環(huan)境安全(quan),北控水(shui)務集團(tuan)充分發(fa)(fa)揮社會責任(ren),積極研究并與日前發(fa)(fa)布了(le)《村鎮(zhen)污(wu)(wu)水(shui)疫情期(qi)強(qiang)化病菌滅(mie)活及消毒應急方案》。
《村(cun)鎮污水(shui)疫情期強化病菌滅活及消毒應急方(fang)案》
編寫(xie)人:王發珍、孫宛、劉宇心;審(shen)(shen)核人:張寶林;審(shen)(shen)定人:杭世(shi)珺。
一、方案背景(jing)
2019年(nian)12月由新(xin)型(xing)冠(guan)(guan)(guan)狀病(bing)(bing)(bing)(bing)毒(du)引起的(de)(de)傳(chuan)染病(bing)(bing)(bing)(bing)疫情席卷我(wo)國,并傳(chuan)播至世界各地,因(yin)此,傳(chuan)染性病(bing)(bing)(bing)(bing)毒(du)的(de)(de)傳(chuan)播途徑(jing)及感染風險(xian)備受關注(zhu)。2020年(nian)2月1日(ri),深圳市第三人民醫院(yuan)肝病(bing)(bing)(bing)(bing)研究所,在(zai)新(xin)冠(guan)(guan)(guan)病(bing)(bing)(bing)(bing)毒(du)感染的(de)(de)肺炎確診患(huan)者(zhe)糞便(bian)中檢(jian)測(ce)出(chu)2019-nCoV核酸(新(xin)冠(guan)(guan)(guan)病(bing)(bing)(bing)(bing)毒(du))陽性。2020年(nian)2月14日(ri),中國給水(shui)排水(shui)公(gong)眾(zhong)號發(fa)布消息,“鐘南山團隊在(zai)患(huan)者(zhe)糞便(bian)中檢(jian)出(chu)新(xin)冠(guan)(guan)(guan)活病(bing)(bing)(bing)(bing)毒(du),專(zhuan)家提(ti)示需注(zhu)意下(xia)水(shui)道通暢!”。因(yin)此,新(xin)冠(guan)(guan)(guan)病(bing)(bing)(bing)(bing)毒(du)可(ke)通過(guo)糞便(bian)途徑(jing)傳(chuan)播,或者(zhe)通過(guo)含有(you)病(bing)(bing)(bing)(bing)毒(du)的(de)(de)糞便(bian)形成的(de)(de)氣溶膠傳(chuan)播的(de)(de)可(ke)能(neng)。
市(shi)政污水系統(tong)直接接納并(bing)處理(li)居民日常生活及部分(fen)企(qi)事業單(dan)位的生活污水,因此(ci),存在(zai)新型(xing)冠狀病毒通過(guo)市(shi)政污水系統(tong)傳播的可能(neng)。在(zai)此(ci)情況下,國家住房和(he)城(cheng)鄉建(jian)設部發布(bu)關于《新冠肺炎疫情期間加強城(cheng)鎮污水處理(li)和(he)水環境風險(xian)防范(fan)的若(ruo)干建(jian)議》,對城(cheng)鎮污水處理(li)系統(tong)安全運(yun)行(xing)提(ti)出注意事項與(yu)對策措施(shi)(shi),但針對小型(xing)村鎮污水項目無應對措施(shi)(shi)。
為保(bao)障(zhang)村(cun)鎮水(shui)(shui)環(huan)境安全,北控水(shui)(shui)務集團充分(fen)發揮(hui)社會責任(ren)感,經認真研究后,提出(chu)村(cun)鎮污水(shui)(shui)疫(yi)情期強化病菌滅活及消毒應急方(fang)案(an),同(tong)時,可為部分(fen)疫(yi)區村(cun)鎮捐(juan)贈消毒設施及藥(yao)劑,為保(bao)障(zhang)疫(yi)區村(cun)鎮水(shui)(shui)環(huan)境安全盡綿薄之力。
二、村(cun)鎮污(wu)水消毒現(xian)狀
截至2019年9月17日,全國34個省、自治(zhi)區、直轄市及特別行(xing)政區中(zhong),有24個發布了《農村生活污(wu)水(shui)處(chu)理設施水(shui)污(wu)染物排放標準(zhun)》或同等(deng)效力的(de)地方標準(zhun)或其征求(qiu)意(yi)見稿,其中(zhong)9個省、自治(zhi)區、直轄市的(de)標準(zhun)已經(jing)正式發布。
通過(guo)對(dui)這(zhe)(zhe)24個(ge)已發(fa)布的標(biao)準進行分(fen)析可(ke)以發(fa)現,pH、SS、COD、NH3-N、TN、TP、動植物(wu)油(大部(bu)分(fen)標(biao)準中的動植物(wu)油指標(biao)是(shi)在有(you)農家樂(le)污(wu)水接入(ru)時才生效)這(zhe)(zhe)7項指標(biao)是(shi)絕大多數標(biao)準中提出的指標(biao),而對(dui)于防疫重要(yao)的糞大腸菌群(qun)值這(zhe)(zhe)個(ge)指標(biao),只(zhi)有(you)河北、江蘇、浙江、山東、海南、甘肅這(zhe)(zhe)6個(ge)省給予了明確規定,其他地區(qu)未做要(yao)求。因此(ci),我國目前已實施的村鎮污(wu)水處(chu)理廠站,多數未另行考慮(lv)消毒措施。
雖然在污(wu)(wu)水(shui)生物(wu)處理過程(cheng)(cheng)中,目前(qian)普遍(bian)采(cai)用的(de)較長泥齡的(de)活性污(wu)(wu)泥本身具有(you)多(duo)個數(shu)(shu)量級(log數(shu)(shu))的(de)病原體消(xiao)除(滅活)效果,能夠(gou)滿足病毒(du)等病原微生物(wu)的(de)滅活程(cheng)(cheng)度(du)控制要(yao)求(qiu);但對于部(bu)分(fen)疫情(qing)村鎮(zhen),新型冠狀病毒(du)仍有(you)可能存在從感染者排放(fang)的(de)污(wu)(wu)水(shui)到(dao)管網、再到(dao)污(wu)(wu)水(shui)處理廠站、最終回到(dao)水(shui)環境的(de)潛在傳輸與暴露路(lu)徑。
因此,村鎮污水疫情期間強化病菌滅(mie)活及消毒尤為(wei)重要。
三、常用消(xiao)毒(du)方式
目前,村鎮污(wu)水廠常(chang)用的(de)消(xiao)毒(du)方(fang)式(shi)主要有物理消(xiao)毒(du)和(he)化(hua)學(xue)消(xiao)毒(du)兩大類,根據官方(fang)報道,其中紫外線和(he)含(han)氯消(xiao)毒(du)劑(ji)均可以有效滅活(huo)新(xin)型冠狀病毒(du)。
(一)物理(li)消(xiao)毒(du)方(fang)法——紫外線(xian)消(xiao)毒(du)
紫(zi)外(wai)線(xian)消毒(du)是(shi)一(yi)種(zhong)物理(li)性的(de)(de)消毒(du)方法,紫(zi)外(wai)線(xian)消毒(du)并不是(shi)殺死(si)微生(sheng)物,而是(shi)去掉其(qi)繁殖(zhi)能力進行滅(mie)活。紫(zi)外(wai)線(xian)消毒(du)的(de)(de)原(yuan)理(li)是(shi)用紫(zi)外(wai)光摧毀微生(sheng)物的(de)(de)遺傳物質核酸(DNA 或(huo) RNA),使其(qi)不能分裂復制。紫(zi)外(wai)線(xian)是(shi)一(yi)種(zhong)波長(chang)范圍為(wei) 136-400nm 的(de)(de)不可(ke)見光線(xian),其(qi)中 260nm 附近已(yi)被證(zheng)實是(shi)殺菌效(xiao)率最高的(de)(de),目前生(sheng)產的(de)(de)紫(zi)外(wai)燈的(de)(de)最大功率輸出在 253.7nm 波長(chang)。
紫外線殺(sha)菌范圍(wei)廣而迅速,處理(li)時間短,在一定(ding)的輻射強度(du)下一般(ban)病(bing)原微生(sheng)物(wu)僅需(xu)十幾(ji)秒即可殺(sha)滅(mie),能(neng)(neng)殺(sha)滅(mie)一些氯消(xiao)毒法(fa)無法(fa)滅(mie)活的病(bing)菌,還能(neng)(neng)在一定(ding)程(cheng)度(du)上控(kong)制一些較高等的水生(sheng)生(sheng)物(wu)如藻類和紅蟲等;過度(du)處理(li)一般(ban)不會產生(sheng)水質問(wen)題;一體化的設備構造(zao)簡(jian)單,容易安裝(zhuang),小巧輕便,水頭損失很小,占地少。
但是紫(zi)外線沒有(you)持(chi)續消(xiao)毒能(neng)力,并且(qie)可能(neng)存在微生物的(de)光復活問題;不(bu)易做(zuo)到在整個處理(li)(li)空(kong)間(jian)內輻(fu)射均勻(yun),有(you)照射的(de)陰影(ying)區,且(qie)處理(li)(li)效果受(shou)水(shui)中懸浮物影(ying)響大(da)。
(二(er))化(hua)學消毒方法
1.液(ye)氯(lv)消毒
向水中(zhong)加入液氯(lv)時發(fa)生(sheng)化(hua)學反應生(sheng)成次(ci)氯(lv)酸(suan),次(ci)氯(lv)酸(suan)是一種強氧化(hua)劑,能(neng)損害細(xi)胞膜,使蛋白質、RNA和DNA等物(wu)質釋出,并影響多種酶系統(主要是磷酸(suan)葡萄糖(tang)脫氫(qing)酶的(de)巰(qiu)基被氧化(hua)破壞),從而(er)使細(xi)菌(jun)死亡。氯(lv)對(dui)病毒的(de)作(zuo)用,在于對(dui)其(qi)核酸(suan)的(de)致死性(xing)損害。
2.二(er)氧化氯消毒
二(er)氧(yang)(yang)(yang)化(hua)氯(lv)在常溫常壓下是一種黃綠色氣(qi)(qi)體(ti),具有與氯(lv)相(xiang)似的(de)(de)刺激(ji)性(xing)氣(qi)(qi)體(ti),極不穩定,氣(qi)(qi)態(tai)和液(ye)態(tai)均易爆炸,故必須(xu)以(yi)(yi)水(shui)溶(rong)液(ye)形態(tai)現(xian)場制(zhi)取,即時使用(yong)。二(er)氧(yang)(yang)(yang)化(hua)氯(lv)易溶(rong)于水(shui),在水(shui)中(zhong)以(yi)(yi)溶(rong)解氣(qi)(qi)體(ti)存在,不發生水(shui)解反應(ying)。二(er)氧(yang)(yang)(yang)化(hua)氯(lv)既是消毒(du)劑(ji),又是強氧(yang)(yang)(yang)化(hua)劑(ji),可以(yi)(yi)殺(sha)滅(mie)一切(qie)微生物,包(bao)括細(xi)(xi)菌(jun)(jun)(jun)繁殖體(ti),細(xi)(xi)菌(jun)(jun)(jun)芽孢,真菌(jun)(jun)(jun),分枝桿(gan)菌(jun)(jun)(jun)和病(bing)毒(du)等,并(bing)且這些細(xi)(xi)菌(jun)(jun)(jun)不會產(chan)生抗藥性(xing)。對(dui)細(xi)(xi)胞(bao)壁有較(jiao)強的(de)(de)吸附和穿透能(neng)力,放出原子氧(yang)(yang)(yang)將細(xi)(xi)胞(bao)內(nei)的(de)(de)含(han)巰基的(de)(de)酶氧(yang)(yang)(yang)化(hua)起(qi)到殺(sha)菌(jun)(jun)(jun)作用(yong)。二(er)氧(yang)(yang)(yang)化(hua)氯(lv)最大的(de)(de)優(you)點是不會與水(shui)中(zhong)有機物作用(yong)生成(cheng)三鹵甲(jia)烷。二(er)氧(yang)(yang)(yang)化(hua)氯(lv)用(yong)于水(shui)消毒(du),在其濃度(du)為0.5-1mg/L時,1分鐘內(nei)能(neng)將水(shui)中(zhong)99%的(de)(de)細(xi)(xi)菌(jun)(jun)(jun)殺(sha)滅(mie),滅(mie)菌(jun)(jun)(jun)效果為氯(lv)氣(qi)(qi)的(de)(de)10倍(bei),次氯(lv)酸鈉的(de)(de)2倍(bei),抑(yi)制(zhi)病(bing)毒(du)的(de)(de)能(neng)力也(ye)比(bi)氯(lv)高3倍(bei),比(bi)臭氧(yang)(yang)(yang)高1.9倍(bei)。但(dan)是因(yin)其投資及使用(yong)成(cheng)本較(jiao)高,常用(yong)于自來水(shui)廠消毒(du),污水(shui)廠應(ying)用(yong)相(xiang)對(dui)較(jiao)少。
3.次氯酸鈉消毒
次(ci)氯(lv)(lv)(lv)酸(suan)(suan)鈉屬于高(gao)效(xiao)的(de)(de)含(han)(han)氯(lv)(lv)(lv)消毒(du)劑(ji)。含(han)(han)氯(lv)(lv)(lv)消毒(du)劑(ji)的(de)(de)殺菌作(zuo)用(yong)包括(kuo)次(ci)氯(lv)(lv)(lv)酸(suan)(suan)的(de)(de)作(zuo)用(yong)、新(xin)生(sheng)氧作(zuo)用(yong)和(he)氯(lv)(lv)(lv)化(hua)(hua)作(zuo)用(yong)。次(ci)氯(lv)(lv)(lv)酸(suan)(suan)的(de)(de)氧化(hua)(hua)作(zuo)用(yong)是含(han)(han)氯(lv)(lv)(lv)消毒(du)劑(ji)的(de)(de)最主要(yao)的(de)(de)殺菌機理,次(ci)氯(lv)(lv)(lv)酸(suan)(suan)鈉在溶液中生(sheng)成(cheng)次(ci)氯(lv)(lv)(lv)酸(suan)(suan)離子,通過水(shui)解反應生(sheng)成(cheng)次(ci)氯(lv)(lv)(lv)酸(suan)(suan),具有與其他氯(lv)(lv)(lv)的(de)(de)衍生(sheng)物相同的(de)(de)氧化(hua)(hua)和(he)消毒(du)作(zuo)用(yong)。次(ci)氯(lv)(lv)(lv)酸(suan)(suan)鈉所含(han)(han)的(de)(de)有效(xiao)氯(lv)(lv)(lv)容(rong)易受日光、溫度的(de)(de)影響而分解,一般采用(yong)次(ci)氯(lv)(lv)(lv)酸(suan)(suan)鈉發生(sheng)器現場制取(qu);當水(shui)廠所在區域周邊具有穩(wen)定可靠(kao)的(de)(de)次(ci)氯(lv)(lv)(lv)酸(suan)(suan)鈉溶液供應商時,也可以采用(yong)投加次(ci)氯(lv)(lv)(lv)酸(suan)(suan)鈉溶液并定期補充的(de)(de)消毒(du)方式。
4.氯片消毒(du)
氯(lv)(lv)(lv)片(pian)(pian)(pian)(pian)為(wei)(wei)白色粉末或顆粒,有(you)氯(lv)(lv)(lv)刺激味、微溶于(yu)水(shui),易溶于(yu)丙(bing)酮。其主(zhu)要化學成(cheng)分(fen)為(wei)(wei)三氯(lv)(lv)(lv)異(yi)氰尿(niao)(niao)酸和二(er)氯(lv)(lv)(lv)異(yi)氰尿(niao)(niao)酸,一(yi)般(ban)二(er)氯(lv)(lv)(lv)異(yi)氰尿(niao)(niao)酸可(ke)快速溶解,而三氯(lv)(lv)(lv)異(yi)氰尿(niao)(niao)酸有(you)緩釋作用。氯(lv)(lv)(lv)片(pian)(pian)(pian)(pian)有(you)許多不(bu)同(tong)規格(ge)的片(pian)(pian)(pian)(pian)劑,如:1g片(pian)(pian)(pian)(pian)、2g片(pian)(pian)(pian)(pian)、5g片(pian)(pian)(pian)(pian)、10g片(pian)(pian)(pian)(pian)、20g片(pian)(pian)(pian)(pian)、50g片(pian)(pian)(pian)(pian)、100g片(pian)(pian)(pian)(pian)、200g片(pian)(pian)(pian)(pian)、500g片(pian)(pian)(pian)(pian)等。不(bu)同(tong)規格(ge)的氯(lv)(lv)(lv)片(pian)(pian)(pian)(pian)的有(you)效(xiao)氯(lv)(lv)(lv)含量不(bu)同(tong),在50-90%不(bu)等。
氯(lv)(lv)片的(de)(de)(de)消毒(du)(du)殺菌效(xiao)果顯(xian)著,溶于(yu)水(shui)后以(yi)次(ci)氯(lv)(lv)酸分子的(de)(de)(de)形(xing)式存在,可(ke)以(yi)使(shi)病原微生(sheng)物的(de)(de)(de)蛋白(bai)(bai)質氯(lv)(lv)化變性致死,殺菌效(xiao)果相當于(yu)漂白(bai)(bai)水(shui)的(de)(de)(de)80-100倍,可(ke)以(yi)快速殺滅各種(zhong)細菌、病毒(du)(du)、真菌等。另(ling)外氯(lv)(lv)片的(de)(de)(de)藥效(xiao)穩定,持(chi)續時間長,在同樣有效(xiao)氯(lv)(lv)濃度的(de)(de)(de)條件下,水(shui)溶液的(de)(de)(de)穩定性和有效(xiao)時間是(shi)漂白(bai)(bai)水(shui)的(de)(de)(de)4-5倍,氯(lv)(lv)片在水(shui)解時存在生(sheng)成次(ci)氯(lv)(lv)酸的(de)(de)(de)平衡過(guo)程,可(ke)以(yi)持(chi)續進行次(ci)氯(lv)(lv)酸釋放。
5.臭氧消毒
臭氧(yang)具有很強的(de)氧(yang)化能力(li),能氧(yang)化大部(bu)分有機物。臭氧(yang)滅菌過程屬(shu)物理、化學和生物反(fan)應,能夠(gou)除藻殺菌,對病毒(du)、芽孢等生命力(li)較強的(de)微生物也能起到很好的(de)滅活作用。
由于臭氧(yang)消(xiao)毒受投資及(ji)成本的(de)影響,在(zai)村鎮污水廠站中的(de)應(ying)用相(xiang)對較少,在(zai)此方案中,針對臭氧(yang)消(xiao)毒不做過多介紹。
四、新型冠狀病(bing)毒(du)的滅活(huo)簡(jian)介
根(gen)據相關文獻(xian)介紹(shao),此次新(xin)型冠狀病(bing)(bing)毒(du)屬(shu)于有包(bao)膜(mo)病(bing)(bing)毒(du),即其(qi)外部包(bao)有由蛋白質(zhi)和脂肪組成(cheng)的(de)外層,且近年(nian)來引起嚴(yan)重流(liu)行(xing)性傳(chuan)染病(bing)(bing)爆(bao)發的(de)SARS冠狀病(bing)(bing)毒(du)、MERS冠狀病(bing)(bing)毒(du)、埃博拉病(bing)(bing)毒(du)、禽(qin)流(liu)感病(bing)(bing)毒(du)等均屬(shu)于有包(bao)膜(mo)病(bing)(bing)毒(du)。
新(xin)冠(guan)(guan)(guan)(guan)病(bing)毒與SARS同(tong)屬(shu)冠(guan)(guan)(guan)(guan)狀病(bing)毒,根據已有對(dui)(dui)SARS在(zai)體外(wai)環(huan)境中(zhong)的(de)(de)(de)存活(huo)規律以(yi)(yi)及氯(lv)(lv)(lv)(lv)(lv)和二氧(yang)化(hua)(hua)氯(lv)(lv)(lv)(lv)(lv)滅(mie)(mie)(mie)活(huo)SARS的(de)(de)(de)研究,可(ke)對(dui)(dui)新(xin)冠(guan)(guan)(guan)(guan)病(bing)毒在(zai)污水收集處理中(zhong)的(de)(de)(de)防控(kong)做參考。根據王新(xin)為等人對(dui)(dui)SARS的(de)(de)(de)研究成果可(ke)知(zhi),SARS在(zai)污水中(zhong)對(dui)(dui)消毒劑(ji)的(de)(de)(de)抵抗力(li)比大腸桿(gan)菌(jun)及f2噬菌(jun)體都低,在(zai)相同(tong)加氯(lv)(lv)(lv)(lv)(lv)量或余氯(lv)(lv)(lv)(lv)(lv)量情(qing)況下,氯(lv)(lv)(lv)(lv)(lv)制劑(ji)對(dui)(dui)SARS的(de)(de)(de)滅(mie)(mie)(mie)活(huo)效果優于(yu)二氧(yang)化(hua)(hua)氯(lv)(lv)(lv)(lv)(lv)。當污水中(zhong)游離(li)余氯(lv)(lv)(lv)(lv)(lv)量保持在(zai)0.5mg/L(氯(lv)(lv)(lv)(lv)(lv)制劑(ji))或2.19mg/L(二氧(yang)化(hua)(hua)氯(lv)(lv)(lv)(lv)(lv))以(yi)(yi)上時可(ke)以(yi)(yi)保證完全滅(mie)(mie)(mie)活(huo)污水中(zhong)的(de)(de)(de)SARS冠(guan)(guan)(guan)(guan)狀病(bing)毒,但對(dui)(dui)大腸桿(gan)菌(jun)和f2噬菌(jun)體則不能(neng)完全滅(mie)(mie)(mie)活(huo)。由此(ci)可(ke)以(yi)(yi)得出,一方(fang)面,SARS冠(guan)(guan)(guan)(guan)狀病(bing)毒在(zai)體外(wai)環(huan)境中(zhong)存活(huo)時間和溫度(du)有關,對(dui)(dui)氯(lv)(lv)(lv)(lv)(lv)和二氧(yang)化(hua)(hua)氯(lv)(lv)(lv)(lv)(lv)敏感(gan)。另一方(fang)面,可(ke)以(yi)(yi)用大腸桿(gan)菌(jun)作為滅(mie)(mie)(mie)活(huo)SARS冠(guan)(guan)(guan)(guan)狀病(bing)毒的(de)(de)(de)指示微(wei)生物。
由(you)于新型(xing)冠(guan)狀(zhuang)病(bing)毒屬于有包(bao)膜(mo)病(bing)毒,在污(wu)水(shui)(shui)(shui)(shui)(shui)系統中(zhong)的(de)存(cun)活(huo)能(neng)力低于無包(bao)膜(mo)的(de)腸道病(bing)毒,且(qie)更易于消(xiao)毒滅(mie)活(huo)。因此,城(cheng)鎮污(wu)水(shui)(shui)(shui)(shui)(shui)處(chu)理(li)常用的(de)氯消(xiao)毒就可以起(qi)到很好的(de)效果。對于消(xiao)毒標(biao)準的(de)控制要求,根據國家住房(fang)和(he)城(cheng)鄉(xiang)建(jian)設部發布關于《新冠(guan)肺(fei)炎疫情(qing)期(qi)間加(jia)強(qiang)城(cheng)鎮污(wu)水(shui)(shui)(shui)(shui)(shui)處(chu)理(li)和(he)水(shui)(shui)(shui)(shui)(shui)環境(jing)風險(xian)防范的(de)若干建(jian)議》,我國現行《城(cheng)鎮污(wu)水(shui)(shui)(shui)(shui)(shui)處(chu)理(li)廠污(wu)染物(wu)排放標(biao)準》GB18918-2002中(zhong)規定的(de)一(yi)級(ji)(ji)A標(biao)準(糞(fen)大腸菌群數量(liang)小于1000個/L)和(he)一(yi)級(ji)(ji)B標(biao)準(糞(fen)大腸菌群數量(liang)小于10000個/L)能(neng)夠滿足病(bing)毒等病(bing)原微生物(wu)的(de)滅(mie)活(huo)程度控制要求,按此標(biao)準處(chu)理(li)達標(biao)的(de)污(wu)水(shui)(shui)(shui)(shui)(shui)排入接(jie)納水(shui)(shui)(shui)(shui)(shui)體(ti),不會增加(jia)水(shui)(shui)(shui)(shui)(shui)體(ti)環境(jing)中(zhong)的(de)病(bing)毒暴(bao)露風險(xian)。
基于此,對現(xian)狀我國村鎮污水疫情期間(jian)強化病菌滅活(huo)及(ji)消毒應急方案如(ru)下。
五、村鎮污水疫情期強化病菌滅活及消毒應(ying)急方案
目前,各地(di)對(dui)村(cun)鎮(zhen)污(wu)(wu)水(shui)(shui)出水(shui)(shui)標準的(de)(de)要求(qiu)不一,尤其針(zhen)對(dui)糞大(da)(da)腸菌(jun)群數的(de)(de)排放標準。大(da)(da)部分地(di)區并未對(dui)村(cun)鎮(zhen)污(wu)(wu)水(shui)(shui)中糞大(da)(da)腸菌(jun)群數進行要求(qiu),因此村(cun)鎮(zhen)污(wu)(wu)水(shui)(shui)處(chu)理廠站并未設計(ji)消(xiao)毒單(dan)元。此次(ci)新型冠狀病(bing)毒疫情(qing)期間,為了保障村(cun)鎮(zhen)居(ju)民的(de)(de)人身安全,針(zhen)對(dui)不同情(qing)況的(de)(de)村(cun)鎮(zhen)污(wu)(wu)水(shui)(shui)處(chu)理廠站,提出疫情(qing)期消(xiao)毒應(ying)急方案,供各地(di)村(cun)鎮(zhen)污(wu)(wu)水(shui)(shui)處(chu)理廠站參考(kao)。
(一)村鎮污水疫情(qing)期消毒應急方案
1.已有(you)氯消毒設施(shi)的處(chu)理廠站(zhan)
對于已有氯(lv)消毒設施的(de)處理(li)廠(chang)站,在(zai)疫(yi)情期間,保(bao)證腸道病毒滅(mie)活率大(da)于99.99%(4log),建議適(shi)當增大(da)氯(lv)消毒藥劑的(de)投加量。
(1)采(cai)用二(er)氧(yang)化(hua)氯消毒的廠站
當處(chu)理廠站(zhan)采用二(er)氧(yang)化(hua)氯(lv)(lv)消(xiao)毒時,由于二(er)氧(yang)化(hua)氯(lv)(lv)消(xiao)毒效(xiao)果受水質影響較(jiao)小,因此投加二(er)氧(yang)化(hua)氯(lv)(lv)的(de)廠站(zhan)需(xu)保證處(chu)理系(xi)統的(de)正常運行,建議有(you)效(xiao)氯(lv)(lv)投加量為8-10mg/L。
(2)采用其他氯消毒的廠站
當處(chu)理廠(chang)站采用次氯(lv)(lv)酸鈉(na)、次氯(lv)(lv)酸鈣(gai)或氯(lv)(lv)片消(xiao)毒時,消(xiao)毒藥劑(ji)受水(shui)質影響較大(da),消(xiao)毒藥劑(ji)的(de)投加量需結合實(shi)際出水(shui)情況而定。參(can)考《新(xin)型冠狀病毒污染的(de)醫院污水(shui)應急處(chu)理技術方案(試行)》,此類氯(lv)(lv)消(xiao)毒藥劑(ji)的(de)投加量為8-10倍(bei)的(de)氨氮濃度(du)及16倍(bei)的(de)有機氮濃度(du),建議接觸時間為60-90min。
2.已有紫外(wai)消毒設施(shi)的處(chu)理廠(chang)站
對于已有紫(zi)外(wai)消毒(du)方式的廠站,紫(zi)外(wai)劑量(liang)不小(xiao)于16mj/cm2,同(tong)時(shi),需補(bu)充氯(lv)(lv)消毒(du),保證15℃水(shui)溫(wen)(wen)條件下的余(yu)氯(lv)(lv)量(liang)不低于0.5mg/L,實(shi)(shi)際水(shui)溫(wen)(wen)較(jiao)低時(shi),余(yu)氯(lv)(lv)的量(liang)要適當(dang)(dang)增加,實(shi)(shi)際水(shui)溫(wen)(wen)較(jiao)高時(shi),余(yu)氯(lv)(lv)的量(liang)可適當(dang)(dang)減少。疫(yi)情(qing)期(qi)間建議補(bu)氯(lv)(lv)的投(tou)加量(liang)按2-4mg/L計(ji)算(suan),投(tou)加點建議設在紫(zi)外(wai)消毒(du)渠后。可選用方便(bian)快捷的氯(lv)(lv)消毒(du)藥(yao)劑,例(li)如成品次氯(lv)(lv)酸(suan)鈉、氯(lv)(lv)片等。
3.無消毒設施的處理廠站
對于無消(xiao)毒(du)設(she)(she)施(shi)的處理(li)廠(chang)站,應(ying)及時加(jia)裝(zhuang)消(xiao)毒(du)設(she)(she)施(shi),考(kao)慮(lv)到(dao)疫情(qing)蔓延的緊迫性,可考(kao)慮(lv)方(fang)便(bian)快捷的氯消(xiao)毒(du)的方(fang)式,如采用(yong)一體(ti)(ti)化(hua)(hua)次氯酸鈉消(xiao)毒(du)設(she)(she)備、一體(ti)(ti)化(hua)(hua)二氧化(hua)(hua)氯發生器或(huo)直接投加(jia)緩釋氯片。
當(dang)(dang)直接(jie)(jie)投(tou)加緩(huan)釋氯(lv)(lv)片時(shi),可(ke)采(cai)用(yong)無動力氯(lv)(lv)片投(tou)加器,投(tou)加點建議(yi)設在(zai)出水(shui)(shui)(shui)檢(jian)測(ce)井內,接(jie)(jie)觸(chu)時(shi)間確保(bao)至少15min以上的(de)接(jie)(jie)觸(chu)時(shi)間(含出水(shui)(shui)(shui)管(guan)至受(shou)納水(shui)(shui)(shui)體的(de)流經(jing)時(shi)間);如出水(shui)(shui)(shui)口流至受(shou)納水(shui)(shui)(shui)體的(de)流經(jing)時(shi)間不(bu)足(zu)15min,需增設接(jie)(jie)觸(chu)消毒設施或適當(dang)(dang)增大消毒藥劑投(tou)加量,但要(yao)控制(zhi)接(jie)(jie)觸(chu)后水(shui)(shui)(shui)中(zhong)余氯(lv)(lv)量,保(bao)證15℃水(shui)(shui)(shui)溫條(tiao)件下的(de)余氯(lv)(lv)量不(bu)低于0.5mg/L,實際(ji)水(shui)(shui)(shui)溫較(jiao)低時(shi),余氯(lv)(lv)的(de)量要(yao)適當(dang)(dang)增加,實際(ji)水(shui)(shui)(shui)溫較(jiao)高時(shi),余氯(lv)(lv)的(de)量可(ke)適當(dang)(dang)減少。
(二)消毒藥劑(ji)簡易投加裝(zhuang)置的設計
疫(yi)情期間,受疫(yi)情管控的(de)(de)影(ying)響,氯消毒設備及藥劑(ji)的(de)(de)采購受限(xian),因此,在本方案中(zhong),給出幾種不(bu)同(tong)消毒藥劑(ji)的(de)(de)簡易投(tou)加裝(zhuang)置(zhi)示意,各地區可(ke)根據當地氯消毒藥劑(ji)的(de)(de)種類(lei),選擇(ze)適(shi)合的(de)(de)藥劑(ji)及投(tou)加方式。
1.成品次氯(lv)酸鈉簡易投加(jia)裝置
(1)成品次(ci)氯酸鈉投(tou)加(jia)裝(zhuang)置示(shi)意圖
成(cheng)品(pin)次(ci)氯酸鈉投加裝置示(shi)意圖如5-1所示(shi)。

圖5-1 成品次氯酸鈉(na)投加裝(zhuang)置示(shi)意圖
(2)成品次氯(lv)酸鈉(na)裝置配置方案
各(ge)地村(cun)鎮可(ke)根據(ju)各(ge)自項目(mu)情(qing)況,進行投加(jia)裝(zhuang)置的(de)配(pei)置。不同規模的(de)村(cun)鎮污水(shui)處理站的(de)配(pei)方(fang)方(fang)案,詳(xiang)見表(biao)5-1、表(biao)5-2。在(zai)使用簡易(yi)投加(jia)裝(zhuang)置時,需根據(ju)表(biao)5-1、表(biao)5-2的(de)參考(kao)投加(jia)量手動調(diao)節加(jia)藥龍頭的(de)開啟大(da)小。投加(jia)點建(jian)議設(she)在(zai)紫外消毒渠后或出水(shui)檢查井內。

2.氯片簡(jian)易投加裝置
(1)氯片簡(jian)易投加裝置示意圖
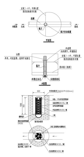
氯(lv)片(pian)簡易(yi)投加裝置(zhi)示意(yi)圖如5-2、5-3所示。圖中簡易(yi)投加裝置(zhi)均按照氯(lv)片(pian)200g/片(pian)規格設計。

圖(tu)5-2 組裝(zhuang)式(shi)氯片簡易投(tou)加(jia)裝(zhuang)置


圖5-3 套筒式氯片簡易(yi)投加裝置
(2)氯片簡(jian)易投機(ji)裝置配置方案
各地村鎮可根據各自項目情況(kuang),進(jin)行投加裝置的(de)配(pei)置。不(bu)同規模的(de)村鎮污(wu)水(shui)處理站的(de)配(pei)置方案,詳(xiang)見表5-3、表5-4。投加點建議設在紫外消毒(du)渠后或(huo)出水(shui)檢查井(jing)內。


3.未做處理的化(hua)糞池、旱廁(ce)等
而對于現(xian)狀尚(shang)未做污水處理的(de)村莊,使用(yong)旱廁(ce)的(de)農戶,建(jian)議(yi)參考《疫情防控環(huan)衛工作指南》定(ding)期對廁(ce)所進行消(xiao)毒,用(yong)有(you)(you)效氯(lv)(lv)為(wei)1000mg/L~2000mg/L的(de)含氯(lv)(lv)消(xiao)毒劑溶(rong)液對旱廁(ce)及公(gong)廁(ce)全面噴(pen)灑消(xiao)毒二次,噴(pen)藥(yao)量為(wei)50-300mg/m2,使用(yong)水廁(ce)含化(hua)(hua)(hua)糞池的(de),建(jian)議(yi)在(zai)化(hua)(hua)(hua)糞池末端應急投加(jia)緩(huan)釋氯(lv)(lv)片(pian)消(xiao)毒,折(zhe)算(suan)有(you)(you)效氯(lv)(lv)投加(jia)量約在(zai)40-60mg/L。(以常用(yong)1m3的(de)化(hua)(hua)(hua)糞池為(wei)例,需(xu)投加(jia)2-4片(pian)20g/片(pian)的(de)氯(lv)(lv)片(pian),建(jian)議(yi)分2-3次投加(jia)。)
(三)消毒應(ying)急方(fang)案費用(yong)估算(suan)
在本應急方案中,所采用消毒藥(yao)劑投(tou)(tou)加(jia)(jia)裝(zhuang)置(zhi)為自主設(she)計(ji),根據(ju)投(tou)(tou)加(jia)(jia)裝(zhuang)置(zhi)設(she)備加(jia)(jia)工費用進行(xing)初步測算,僅供(gong)參考,具體(ti)投(tou)(tou)資情況如表(biao)5-5、表(biao)5-6及表(biao)5-7所示。
1.成品次氯酸鈉投加裝(zhuang)置

2.氯片簡易投(tou)加(jia)裝置
(1)組裝式氯片投加(jia)裝置(zhi)(小加(jia)藥量適用)

(2)套筒式氯片(pian)投加(jia)裝(zhuang)置(zhi)(大小加(jia)藥量均(jun)適用)

六、疫情(qing)期后村鎮(zhen)污(wu)水消毒建議(yi)
待此次疫(yi)情結(jie)束(shu)后,針(zhen)對(dui)已有(you)消毒(du)設(she)施(shi)的(de)村鎮污水(shui)(shui)處(chu)理(li)(li)廠(chang)站,恢(hui)復正常(chang)消毒(du)劑(ji)量(liang)及消毒(du)方式。針(zhen)對(dui)無消毒(du)設(she)施(shi)的(de)村鎮污水(shui)(shui)處(chu)理(li)(li)廠(chang)站,建議(yi)保留疫(yi)情期間(jian)增設(she)的(de)簡易(yi)投(tou)(tou)(tou)加(jia)裝置,但需將消毒(du)藥(yao)劑(ji)投(tou)(tou)(tou)加(jia)量(liang)調(diao)整為常(chang)規投(tou)(tou)(tou)加(jia)濃度,一(yi)般一(yi)級(ji)B出水(shui)(shui)有(you)效(xiao)氯投(tou)(tou)(tou)加(jia)量(liang)為4-6mg/L,一(yi)級(ji)A出水(shui)(shui)有(you)效(xiao)氯投(tou)(tou)(tou)加(jia)量(liang)為6-8mg/L。
七、注意(yi)事項(xiang)
(一)人(ren)工投加消毒(du)劑時需重視防護
由于污水(shui)中的(de)懸浮固體顆(ke)粒可作(zuo)(zuo)為(wei)(wei)(wei)病毒(du)(du)的(de)載體,為(wei)(wei)(wei)其提(ti)(ti)供適于生(sheng)存(cun)的(de)環(huan)境,因此(ci)病毒(du)(du)在(zai)污染水(shui)體中的(de)生(sheng)存(cun)能力得到增強。在(zai)污水(shui)處理(li)過(guo)程(cheng)中,許多未密封的(de)處理(li)設施表(biao)面會產生(sheng)水(shui)汽,形成氣(qi)凝膠,而氣(qi)凝膠也可能成為(wei)(wei)(wei)病原微生(sheng)物包(bao)括病毒(du)(du)、細菌(jun)的(de)寄生(sheng)場所(suo)。因此(ci),一線運行人員在(zai)人工投加消毒(du)(du)劑時(shi),應提(ti)(ti)高防(fang)范意(yi)識,全程(cheng)須佩帶口罩、防(fang)水(shui)手套、護(hu)目鏡(jing)和安全帽等防(fang)護(hu)用品(pin),有條件的(de)穿戴防(fang)護(hu)面罩、防(fang)護(hu)服(fu)。操作(zuo)(zuo)完(wan)成后,還(huan)應及(ji)時(shi)清洗和消毒(du)(du)。
(二)消毒(du)劑(ji)投加量不宜過量
消毒劑的投(tou)(tou)加滿足(zu)需(xu)求即可,如過量(liang)投(tou)(tou)加會對水體產生影響,不利于水生態的正常運轉。

登錄
